Avenue
Location: New Capital
Category: commercial
About the Project
It is located in the first delivery zone of the New Capital City, namely in Al-Maqsed. The New Capital, as a premium real estate investment opportunity, guarantees not just residential and commercial space, but also a flourishing city at the forefront of economic development. With cutting-edge infrastructure and a commitment to smart city solutions, now is your time to be a part of Egypt's exciting future.
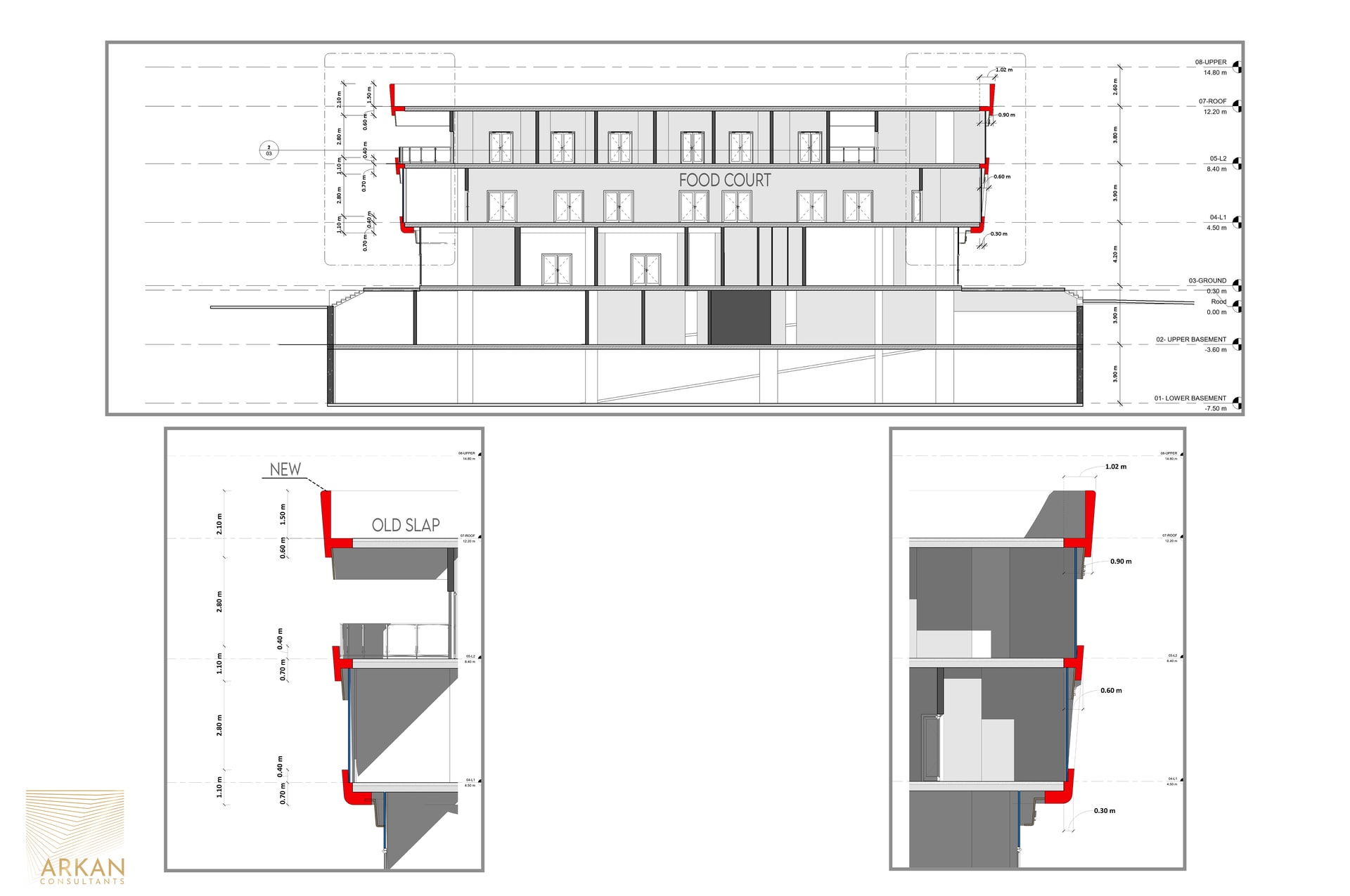
This is the initial choice for all R3 residents. It serves around 1200 villas directly. Providing an exceptional shopping experience for all R3 residents and surrounding neighborhoods. It will be the most popular retail destination. This mall spans over 2300m and includes retail stores, a bank, a supermarket, and food and beverage establishments. It has a wavy modern line of design inspired by the lines of nature that would be all around it, and the major goal was to create an effortless purchasing experience for our clients' satisfaction.
This facility is ideally located in the heart of R3 Al-Maqsed. This will be the fastest expanding community in the New Capital City. It is conveniently located near Madinaty and EI-Shorouk city. The location is approximately a 10-minute drive from New Cairo and 1 minute from Sports City New Capital.
The academic town along particularly the European University in Cairo and the Canadian University in Cairo, is one minute from the Smart Village area, five minutes from Seven Pillars International School and Sahara New Capital International School, and one minute from the iconic Tower.






